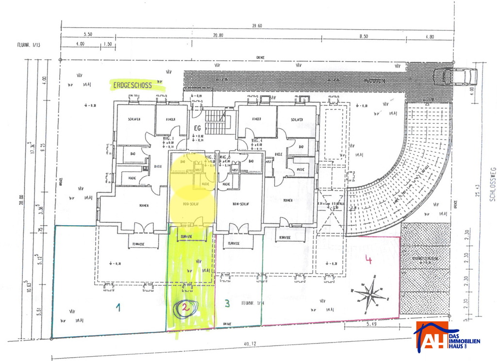
Schickes 1 ½ Zimmer-Appartement in gepflegter Wohnanlage „Schlossblick“ in Fellheim





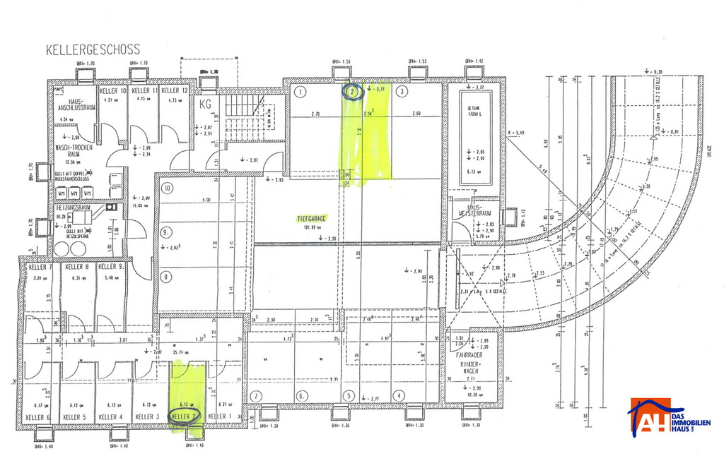
| Objekt-Nr. | AH-0526 |
| Objekt-Art | Erdgeschoss |
| Standort | Fellheim |
| Status | Verkauft |
| Wohnfläche | 36 m² |
| Zimmer | 1,5 |
| Kaufpreis | 75.000 € |
| Verfügbarkeit | nicht mehr verfügbar |
Dieses südlich ausgerichtete Appartement befindet sich im Erdgeschoss einer gepflegten, gut geführten Wohnanlage in ruhiger, naturnaher Lage. Von der Terrasse mit eigenem Gartenanteil hat man Blick zum Schloss von Fellheim.

