Kressbronn - staatlich anerkannter Erholungsort am Bodensee. Was die Region bei ihren Einwohnern und Gästen so beliebt macht, ist in Kressbronn a. B. im Überfluss vorhanden: die landschaftliche Schönheit und das besondere Freizeitangebot.
Diese Wohnung befindet sich im 1. Obergeschoss (mit Aufzug bis in das Untergeschoss mit Tiefgarage) eines Mehrfamilienhauses in guter, ruhiger Lage unweit der südlichen Ortsmitte von Kressbronn! Sie ist direkt neben einer Obstplantage und dennoch sehr verkehrsgünstig zum Bahnhof gelegen - mit guter, vollständiger Infrastruktur. Alles Wichtige ist zu Fuß erreichbar – und auch der Bodensee mit Schiffsanlegestelle und Naturfreibad ist nur ein paar Gehminuten entfernt.
Kapitalanlage oder Ferienwohnung!? Beides ist möglich! Die Wohnung ist sowohl „klassisch“ wie auch als Ferienwohnung sehr gut nutzbar.
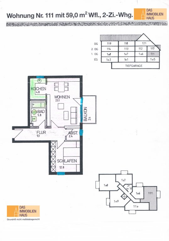
Die Wohnung ist in gutem, sehr gepflegtem Zustand. Sie besticht durch ihre Helligkeit und die gute Raumaufteilung: Eingangsdiele/Flur mit Abstellraum (kein Kellerraum zur Wohnung!), Badezimmer (Wanne, Waschbecken, WC, Waschmaschinenanschluss), Schlafzimmer, abgeschlossene Küche (inkl. Einbauküche), helles Wohn-Esszimmer mit Ausgang zumsonnigen, überdeckten Süd-Balkon.
Im Untergeschoss befinden sich weitere allgemeine Nebenräume (Trocken-, Fahrrad-, Müll-, Wachraum). Im Waschraum befindet sich ein weiterer zur Wohnung gehörender Platz zum Anschluss von Waschmaschine und /oder Wäschetrockner. Zur Wohnung gehört ebenso noch ein Tiefgaragenplatz (Duplex-Parker „unten“).
Die Wohnung ist in sehr gutem, gepflegtem Zustand. Die Ausstattungskurzübersicht:
* Massivbauweise
* Gas-Zentralheizung (neu in 2020)
* Aufzug von der TG bis ins DG
* sonniger, überdeckter Süd-Balkon
* Einbauküche inkl. Elektrogeräten - inkl. Waschmaschine
* Badezimmer mit Badewanne, WC, Waschbecklen, Waschmasch.-Anschluss
* Abstellraum in der Wohnung (kein Kellerraum für die Wohnung!)
* Kabelanschluss für Radio/TV
* komplette Hausmeisterbetreuung
* TG-Stellplatz (Duplexparker "unten")
Die Wohnung ist derzeit sehr gut (seit Mai 2023) vermietet!
zur Ausstattung ...