| Objekt-Nr. |
AH-0437 |
| Objekt-Art |
Dachgeschoss, Etage |
| Standort |
Ravensburg |
| Status |
Vermietet |
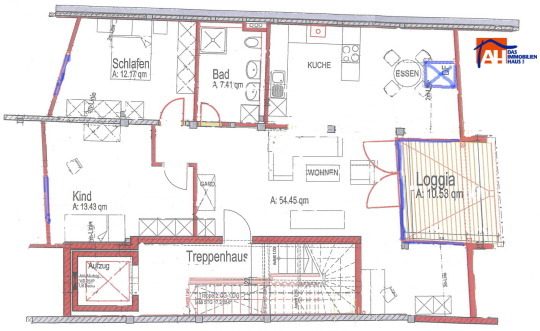
| Wohnfläche |
91 m² |
| Zimmer |
3,5 |
| Monatsmiete kalt |
1.050 € |
| Nebenkosten |
150 € |
| Monatsmiete gesamt |
1.200 € |
| Verfügbarkeit |
nicht mehr verfügbar |
Exklusiv Wohnen in der Ravensburger Altstadt!
Diese ruhig gelegene Wohnung befindet sich im 1. Dachgeschoss eines quasi neu erstellten, kernsanierten Mehrfamilienhauses der Ravensburger Altstadt am Gespinstmarkt. Die Wohnung selbst ist mit der großen Aussichtsdachterrasse zum Gespinstmarkt hin ausgerichtet - ein Aufzug ist selbstverständlich vorhanden.
| Objekt-Nr. |
AH-0437 |
| Objekt-Art |
Dachgeschoss, Etage |
| Standort |
Ravensburg |
| Status |
Vermietet |
| Wohnfläche |
91 m² |
| Zimmer |
3,5 |
| Monatsmiete kalt |
1.050 € |
| Nebenkosten |
150 € |
| Monatsmiete gesamt |
1.200 € |
| Verfügbarkeit |
nicht mehr verfügbar |
Exklusiv Wohnen in der Ravensburger Altstadt!
Diese ruhig gelegene Wohnung befindet sich im 1. Dachgeschoss eines quasi neu erstellten, kernsanierten Mehrfamilienhauses der Ravensburger Altstadt am Gespinstmarkt. Die Wohnung selbst ist mit der großen Aussichtsdachterrasse zum Gespinstmarkt hin ausgerichtet - ein Aufzug ist selbstverständlich vorhanden.
Exklusiv Wohnen in der Ravensburger Altstadt!
Diese ruhig gelegene Wohnung befindet sich im 1. Dachgeschoss eines quasi neu erstellten, kernsanierten Mehrfamilienhauses der Ravensburger Altstadt am Gespinstmarkt. Die Wohnung selbst ist mit der großen Aussichtsdachterrasse zum Gespinstmarkt hin ausgerichtet - ein Aufzug ist selbstverständlich vorhanden.
1. Dachgeschoss mit Aufzug, Gas-Zentralheizung, Parkett, sehr hochwertige, moderne Einbauküche, Kabelanschluss für Radio/TV, kompletter Hausmeisterservice
zur Ausstattung ...