Ein großes Haus "auf dem Land!" - Einfamilienhaus in "Grenzbauweise" in Riedhausen

















| Objekt-Nr. | AH-0450 |
| Standort | Riedhausen |
| Status | Vermietet |
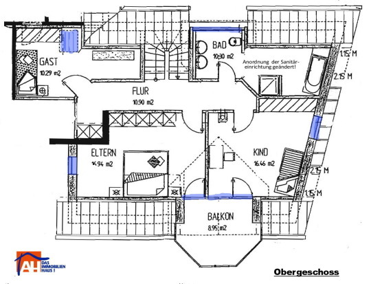
| Wohnfläche | 135 m² |
| Zimmer | 4,5 |
| Monatsmiete kalt | 750 € |
| Nebenkosten | 200 € |
| Monatsmiete gesamt | 950 € |
| Verfügbarkeit | nicht mehr verfügbar |
Dieses gemütliche, 1996/97 erstellte Haus wurde und an ein bestehendes Einfamilienhaus angebaut. Es befindet sich in Ortsrandlage von Riedhausen. Nach Wilhelmsdorf sind es nur ein paar Kilometer, ebenso nach Altshausen oder Bad Saulgau. Ravensburg und Weingarten sind etwa 25 km bzw. 25 Autominuten entfernt.

