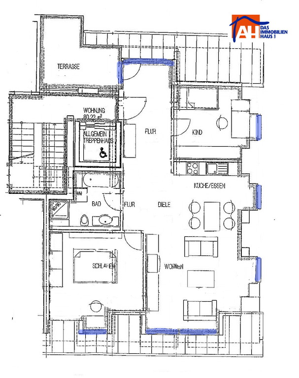
Mitten in der Altstadt von Ravensburg: chice, helle 3 ½ Zimmer-Dachwohnung mit Dachterrasse

















| Objekt-Nr. | AH-0496 |
| Objekt-Art | Dachgeschoss |
| Standort | Ravensburg |
| Status | Verkauft |
| Wohnfläche | 80 m² |
| Zimmer | 3,5 |
| Kaufpreis | 248.000 € |
| Verfügbarkeit | nicht mehr verfügbar |
Klasse Lage in der „unteren“ Ravensburger Altstadt!
Diese ruhig gelegene, moderne Wohnung befindet sich im Dachgeschoss (mit Aufzug) eines kernsanierten, 2000 quasi neu erstellten, 8-Familien-Wohnhauses der Ravensburger Altstadt.

