Familienfreundlich! Eine moderne Doppelhaushälfte



















| Objekt-Nr. | AH-0379 |
| Objekt-Art | Doppelhaushälfte |
| Standort | Baienfurt |
| Status | Verkauft |
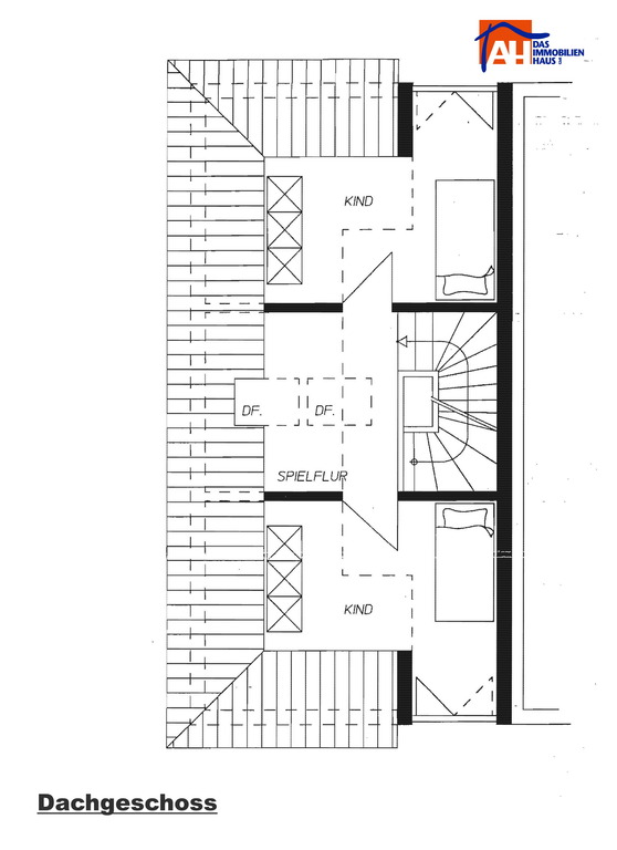
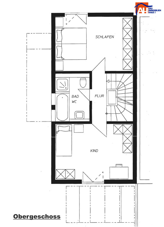
| Wohnfläche | 123 m² |
| Zimmer | 5,5 |
| Kaufpreis | 239.000 € |
| Verfügbarkeit | nicht mehr verfügbar |
Eine moderne Doppelhaushälfte!
Diese moderne Doppelhaushälfte befindet sich in guter Wohnlage des "Weidenösch/Rainpadent", ohne direkten Autoverkehr vor und hinter dem Haus. Die Nachbarschaft mit Kindern und der Spielplatz "vor dem Haus" machen das Haus insbesondere für junge Familien interessant. Kindergarten Bushaltestelle, Einkaufsmöglichkeiten wie auch die Ortsmitte mit wirklich kompletter (!) Infrastruktur (u.a. Schule, Ärzte, Apotheken, Banken,...) liegen in nächster Nähe.

