| Objekt-Nr. |
AH-0394 |
| Objekt-Art |
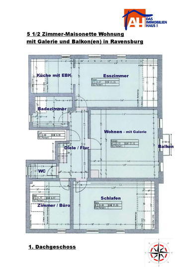
Dachgeschoss, Maisonette |
| Standort |
Ravensburg |
| Status |
Verkauft |
| Wohnfläche |
132 m² |
| Zimmer |
5,5 |
| Kaufpreis |
197.000 € |
| Verfügbarkeit |
nicht mehr verfügbar |
Diese "Galerie-Wohnung" über 2 Etagen befindet sich im Dachgeschoss eines stilvollen, renovierten 3-Familien-Altstadthauses der Gründerzeit in der Ravensburger "Nordstadt". Die Stadtmitte ist ebenso zu Fuß erreichbar wie verschiedene Einkaufsmöglichkeiten und eine nahe Stadtbushaltestelle.
weiterlesen ...
| Objekt-Nr. |
AH-0394 |
| Objekt-Art |
Dachgeschoss, Maisonette |
| Standort |
Ravensburg |
| Status |
Verkauft |
| Wohnfläche |
132 m² |
| Zimmer |
5,5 |
| Kaufpreis |
197.000 € |
| Verfügbarkeit |
nicht mehr verfügbar |
Diese "Galerie-Wohnung" über 2 Etagen befindet sich im Dachgeschoss eines stilvollen, renovierten 3-Familien-Altstadthauses der Gründerzeit in der Ravensburger "Nordstadt". Die Stadtmitte ist ebenso zu Fuß erreichbar wie verschiedene Einkaufsmöglichkeiten und eine nahe Stadtbushaltestelle.
weiterlesen ...
Diese "Galerie-Wohnung" über 2 Etagen befindet sich im Dachgeschoss eines stilvollen, renovierten 3-Familien-Altstadthauses der Gründerzeit in der Ravensburger "Nordstadt". Die Stadtmitte ist ebenso zu Fuß erreichbar wie verschiedene Einkaufsmöglichkeiten und eine nahe Stadtbushaltestelle.
Die Wohnung ist derzeit vermietet.
guter, renovierter Zustand !
massive Bauweise, Gas-Zentralheizung, kpl. Parkett/Holzböden, sep. WC, Tageslichtbad mit Badewanne + Dusche, Einbauküche, Kabelanschluss für Radio/TV, Westbalkon mit Aus-/Weitsicht !
zur Ausstattung ...