Sonnig und hell mit schönem, uneinsehbarem Garten !
Dieses helle, freistehende Einfamilienhaus befindet sich sonniger, ruhiger Ortsrandlage. Eine gute Infrastruktur mit Lebensmittelversorgung, Arzt, Bank, Kindergarten/Grundschule und Sportmöglichkeiten ist fußläufig vorhanden. Ravensburg/Weingarten ist sowohl per Bus als auch in 5-10 Minuten mit dem Auto sehr gut erreichbar.
Modern und top-ausgestattet
Das sehr hochwertige Haus zeichnet sich, neben der guten und umfangreichen Extra-Ausstattung, auch durch seine „familienfreundliche“ Größe mit 4 Schlafzimmern + Arbeitszimmer, 2 Bädern und den schön angelegten, nicht einsehbaren Garten mit großem Wintergarten und zwei Terrassen aus.
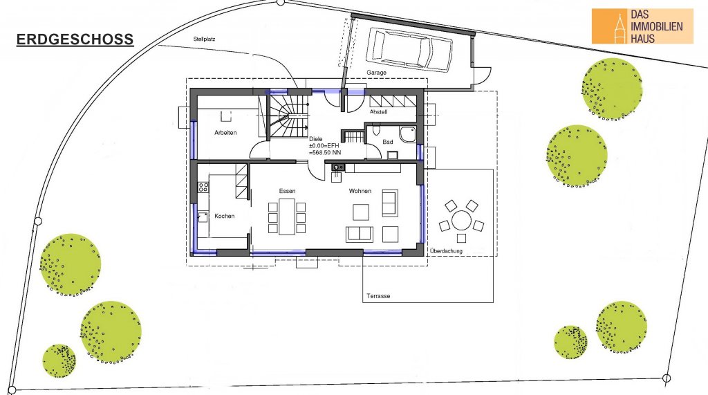
Das Haus ist wie folgt aufgeteilt: Erdgeschoss: Windfang mit Garderobe, Gäste-Bad mit Dusche und WC, Küche (inkl. PLANA-Einbauküche), großes Wohn-Esszimmer mit Ausgängen zur großen, glasüberdachten Terrasse (mit elektr. Markise), dem Wintergarten sowie zum Garten. Im Wohnzimmer ist ein hochwertiger Kachelofen mit Wärmespeicher als zusätzliche, behagliche Wärmequelle eingebaut.
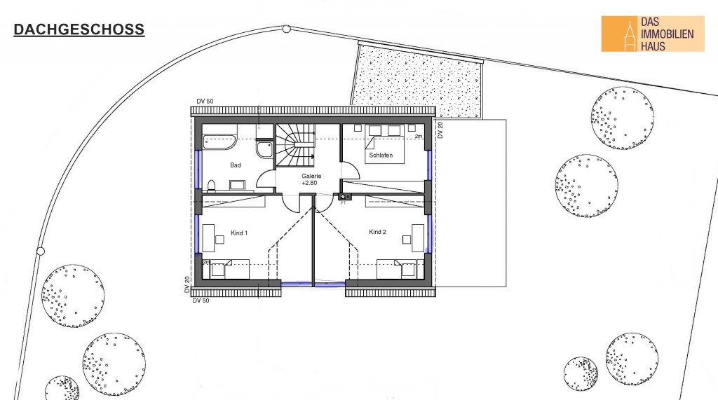
Ober-(Dach-)geschoss: drei Schlafzimmer (2 davon mit jeweils 22 m²), großes Tageslichtbad (mit Eckbadewanne, Dusche, Doppelwaschbecken und WC).
Untergeschoss: alle 3 Kellerräume sind gefliest und beheizbar, zusätzlich 1 Heiz- bzw. Wasch-/Trockenraum und ein durch den Lichthof schön helles, großes (Gäste-)Zimmer.
Direkt neben dem Eingang liegt die Garage, durch die man jeweils direkt ins Haus und/oder in den Garten gelangen kann.
Top-Ausstattung mit vielen Extras
massive Bauweise, Satteldach,Gas-ZH (Fußbodenheizung) mit Solarunterstützung für Warmwasser und Heizung + gemauerter Kachelofen im Wohnbereich, Kellerräume gefliest und beheizbar, einbruchsichere,
großzügig verglaste Fenster bzw. Fenstertürflächen mit elektr. Rollläden, Alarmanlage, überdachte Terrasse mit elektr. Markise und Wetterautomatik, Regenwasser-Zisterne, Gartenhaus, Garten mit Bewässerungssystem, hochwertige PLANA-Einbauküche, Glasfaserinternet
zur Ausstattung ...