Ruhig gelegen und mit eigenem Garten!
Diese Wohnung nimmt das komplette Erdgeschoss eines ruhig gelegenen, kleinen Mehrfamilienhauses am Ende einer Sackgasse in Ostrach ein. Zur Ortsmitte mit einer guten Infrastruktur sind es nur ein paar Gehminuten.
Schön(er) Wohnen in Ostrach! Geräumige 4-Zi.-EG-Wohnung mit Terrasse und Garten.
Diese Wohnung nimmt das komplette Erdgeschoss eines ruhig gelegenen, kleinen Mehrfamilienhauses am Ende einer Sackgasse in Ostrach ein. Zur Ortsmitte mit einer guten Infrastruktur sind es nur ein paar Gehminuten. Die Wohnung ist sehr hell und mit der Terrasse und dem Garten nach Süden hin ausgerichtet. Sie ist sehr gepflegt und gut ausgestattet, so z.B. mit Vollholzparkett sowie Fenstern und Rollläden aus Kunststoff.
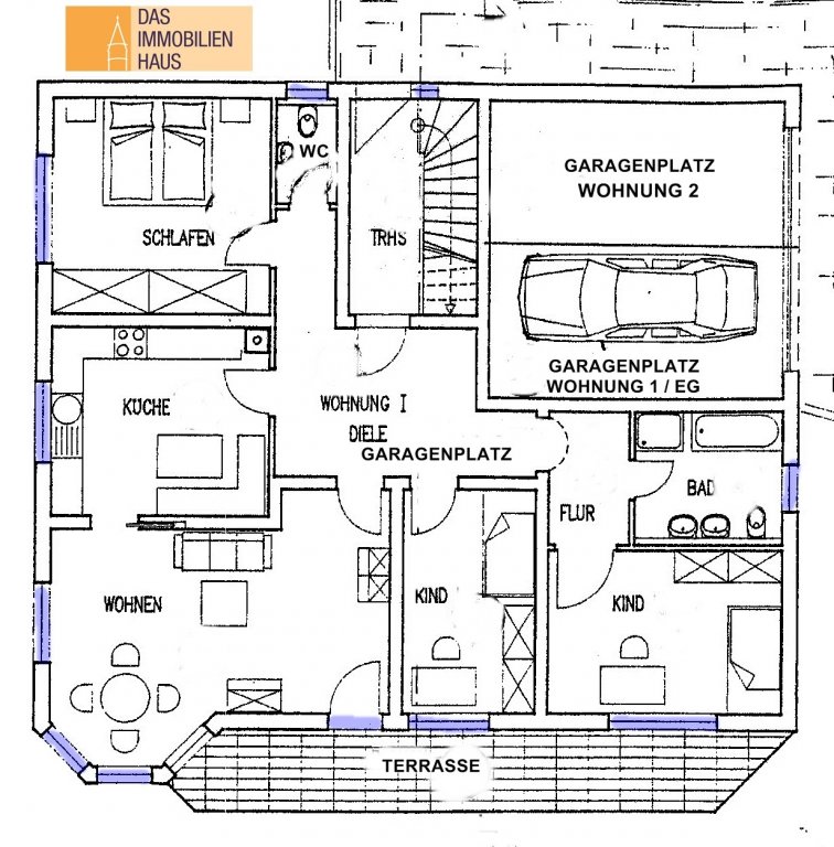
Sie ist - teilweise abweichend zum vorliegenden Grundriss - wie folgt aufgeteilt: Eingang/Diele, Flur/Garderobe, separates Gäste-WC (mit Fenster), Tageslichtbad (mit Eckbadewanne, Dusche mit Kabine, 2 Waschbecken, WC), Elternschlafzimmer (mit Platz für einen großen Schrank), 2 Kinder-/Gästezimmer, abgeschlossene Wohn-/Essüche mit Zugang vom Flur bzw. Zugang (mit Schiebetüre) zum geräumigen Wohnbereich, von welchem man auf die Terrasse und den eigenen Garten(teil) gelangt.
Die vorhandene Einbauküche (inkl. Marken-Elektroeinbaugeräten) kann gegen einen günstigen Ablöse-betrag von den aktuellen Mieter übernommen werden.
Zur Wohnung gehören ein eigener großer Kellerraum (mit Fenster in dem sich auch de Anschluss für Waschmaschine/Wäschetrockner befindet) und .
Zur Wohnung gehört ferner eine Garage, von der man auch direkt ins Haus gelangt (gegenüber Plan geändert!) und ein eigener Kfz-Stellplatz im Freien.
Komplettes Erdgeschoss mit Terrasse und Garten , neue Gas-Zentralheizung (2018), separates Gäste-WC + großes Tageslichtbad, Vollholz-Parkettboden in Eiche, SAT-Anlage
Die vorhandene Einbauküche (inkl. Marken-Elektroeinbaugeräten) kann - falls gewünscht - u.U. gegen einen günstigen Ablösebetrag von den aktuellen Mieter übernommen werden.
zur Ausstattung ...