Diese helle, modern und gut ausgestattete 2-Zimmer-Wohnung befindet sich im Dachgeschoss eines 6-Familienhauses in guter, ruhiger Wohnlage der Ravensburger „Südstadt“.
Chic Wohnen in der Südstadt !
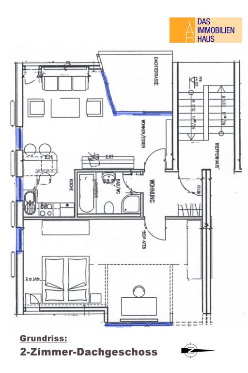
Diese helle, modern und gut ausgestattete 2-Zimmer-Wohnung befindet sich im Dachgeschoss eines 6-Familienhauses in guter, ruhiger Wohnlage der Ravensburger „Südstadt“.
Die Wohnung ist wie folgt aufgeteilt: Diele/Garderobe, Bad (mit WC, Waschbecken, Dusche u. Wanne), sehr großes Schlafzimmer (mit Platz z.B. für eine Arbeits-/Büroecke), Wohn-Esszimmer mit Ausgang zur westlich ausgerichteten, uneinsehbaren Dachloggia. In einer kleinen, hellen Nische, die mit einer Esstheke zum Wohnbereich abgegrenzt ist, befindet sich die zur Wohnung gehörende komplett ausgestattete Einbauküche (u.a. mit Herd/Backofen, Kühlschrank, Spülmaschine).
Zusätzlich ist ein Bühnenraum vorhanden, der über eine Einschubtreppe (in der Diele) zugänglich ist. Im Untergeschoss befinden sich der Wasch-/Trockenraum und ein gemeinschaftlicher Fahrrad- und Müllraum Zur Wohnung gehören ein Tiefgaragenstellplatz und ein eigener Kellerraum.
Dachgeschoss mit sichtbarem, hellem Dachgebälk, Parkett, Einbauküche, Bad mit Dusche + Wanne, Kabelanschluss für TV/Radio, komplette Hausmeisterbetreuung
Die Wohnung soll bevorzugt an eine - weibliche - Einzelperson oder ein Paar (Nichtraucher) vermietet werden.
Die Wohnung ist nicht WG-geeignet. Haustiere sind nicht gestattet.
zur Ausstattung ...