Eine komfortable 2-Zi.-Wohnung im Erdgeschoss und zusätzliche Einliegerwohnung/-zimmer mit Bad!
Diese herrliche, überaus großzügige Komfortwohnung befindet sich in einem ruhigen Wohngebiet der lebendigen Gemeinde Bergatreute - mit guter Infrastruktur (Einkaufsmarkt, Kindergarten, Grundschule, Bushaltestelle, …).
Die Wohnung ist sehr gut und hell ausgestattet. Die großen Fensterflächen lassen viel Licht und Sonne ins Haus.
Sie nimmt das komplette Erdgeschoss und einen Teil des Untergeschosses ein. Über den Haupteingang mit Treppenhaus gelangt man in die Hauptwohnung mit ca. 112 m². Sie ist wie folgt aufgeteilt: Eingang/Diele mit Garderobe, Hauswirtschaftsraum (u.a. mit Anschluss für Waschmaschine und Wäschetrockner), Schlafzimmer mit Tageslichtbad (mit Badewanne, Dusche, Waschtisch und WC), Gäste-WC, abgeschlossene Küche - inkl. EBK - mit Speisekammer und großes Wohn-Esszimmer (ca. 45 m²) mit Ausgang zu Terrasse und Garten.
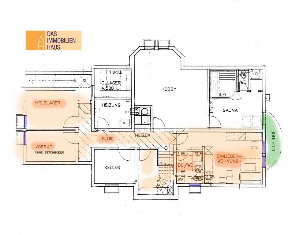
Über das Treppenhaus gelangt man ins Untergeschoss mit dem zur Wohnung gehörigen, eigenständigen Einliegerzimmer, das durch den großen Lichthof vor den Fenstern ebenfalls sehr hell ist. Hierzu gehört ein eigenes Bad mit Dusche, Waschbecken und WC. Diese kleine "Einliegerwohnung" mit ca. 25 m² eignet sich somit ideal als separates Büro oder Gästebereich oder natürlich auch z.B. für schon (fast) erwachsene Familienangehörige.
Der Garten steht der Wohnung zur alleinigen Nutzung zur Verfügung und ist eigenständig und auf eigene Kosten zu pflegen. Dabei sollte dies mehr aus Liebe zum Garten denn als "lästige Pflicht" verstanden werden!!!
Das Untergeschoss, in dem sich die 2 eigenen Kellerräume befinden, hat einen zusätzlichen Außenzugang vom bzw. in den Garten.
Die Garage ist mit einem elektrischen Torantrieb sowie einer vom Garagentor unabhängigen separaten Zugangstür versehen. In der Garage liegt Strom/Licht, zudem ist ein Wasseranschluss mit Ausgussbecken vorhanden.
Ziegel-Massivbauweise, Öl- Zentral-Heizung mit Solarunterstützung, Kachelofen im Wohnzimmer, Kunststoff-Fenster, Wasserenthärtungsanlage, Regenwasserzisterne für WC und Gartenbewässerung,
Einbauküche, 2 Tageslichtbäder+ Gäste-WC, eigener Garten mit Gartengerätehaus, 2 große Terrassen (mit Markise)
Die Wohnung ist frei und steht kurzfristig zur Verfügung. Haustiere sind nicht gewüscht!
Die 2 Zimmerwohnung im Dachgeschoss des Hauses wird vom Eigentümer/Vermieter - allerdings nur "sporadisch" - genutzt.
zur Ausstattung ...