AH-DasImmobilienhaus GbR
AH-DasImmobilienhaus GbR

Immobilien zur Miete


Ihr Immobilienpartner in Ravensburg

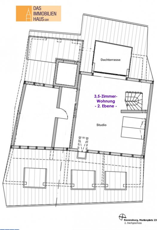
Über den Dächern von Ravensburg: 3 ½ -Zi.-Maisonette am Marienplatz mit Dachterrasse!

Objekt-Nr. AH-0228-1
Objekt-Art Dachgeschoss, Maisonette
Standort Ravensburg
Status Vermietet
Wohnfläche 92 m²
Zimmer 3,5
Monatsmiete kalt 920 €
Nebenkosten 120 €
Monatsmiete gesamt 1.040 €
Verfügbarkeit nicht mehr verfügbar

"Im Herzen von Ravensburg" - direkt am Marienplatz gelegen.

weiterlesen ...