Exklusiv Wohnen in der Ravensburger Altstadt!
Diese ruhig gelegene Wohnung befindet sich in einem kernsanierten, quasi neu erstellten, Mehrfamilienhaus der Ravensburger Altstadt am Gespinstmarkt. Die Wohnung selbst liegt im 2. Obergeschoss – ein Aufzug ist selbstverständlich vorhanden.
Noch "fast" neu: hochwertig sanierte Wohnung im Neubaustandard: hochwertig - offen - modern !
Diese ruhig gelegene Wohnung befindet sich in einem kernsanierten, quasi neu erstellten, Mehrfamilienhaus der Ravensburger Altstadt am Gespinstmarkt. Die Wohnung selbst liegt im 2. Obergeschoss – ein Aufzug ist selbstverständlich vorhanden.
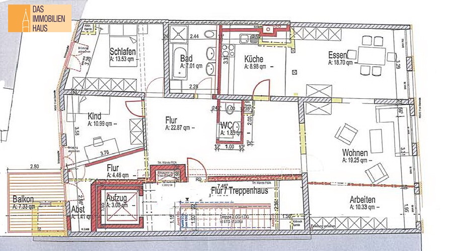
Die Wohnung besticht durch ihre Helligkeit und das moderne Flair. Sie ist wie folgt aufgeteilt: Eingang mit großer Wohndiele, separates Gäste-WC, Badezimmer (2 Waschbecken, Badewanne, Dusche, WC, Anschluss für Waschmaschine/Wäschetrockner), heller, individueller Wohn-Essbereich, „halboffene“ Küche (inkl. Markeneinbauküche mit Einbaugeräten) - mit separatem Zugang von der Diele - 2 Schlafzimmer + Arbeits-/Gästezimmer. Der Balkon zum ruhigen Innenhof ist über den Flur zugänglich.
Im Untergeschoss des Hauses befinden sich ein eigenes Kellerabteil sowie ein Müll- und Fahrradraum.
2. Obergeschoss mit Aufzug, Gas-Zentralheizung, moderne Markeneinbauküche, separates Gäste-WC, Kabelanschluss für Radio/TV, kompletter Hausmeisterservice
Aktuelle Bilder der Wohnung liegen leider nicht vor, die abgebildeten Fotos stammen noch vom Vormieter.
zur Ausstattung ...